项目地址 |信达·印南山
项目面积 |70㎡
项目风格 | 现代极简风
项目类型|新房装修
设计师 | 唤新家空间改造 冉工
原图
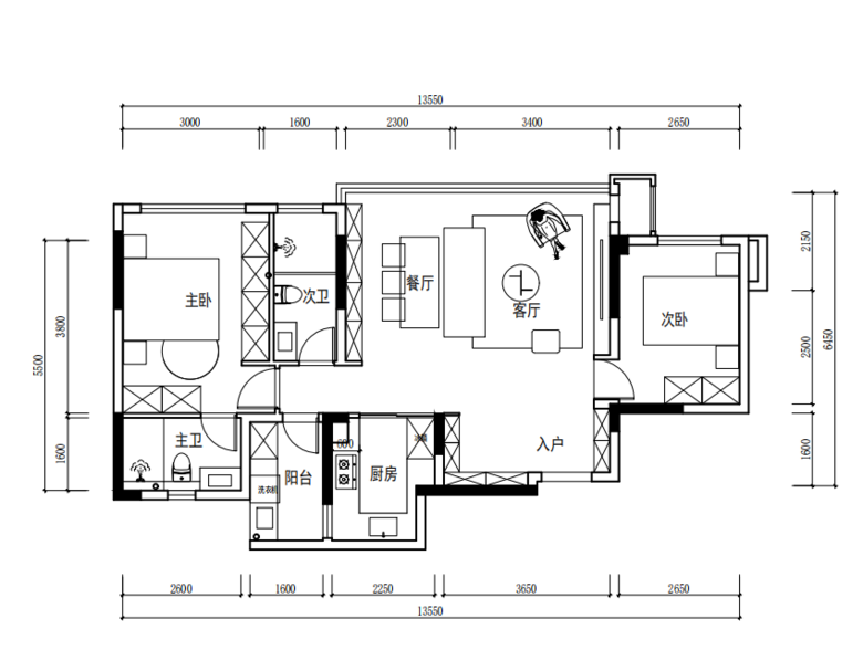
平面设计图

改造重点:
1.打掉次卧的非承重墙,实现开放式大横厅
2.入户餐厅区域改L型柜子,增加收纳区域
3.全屋以“白+灰+黑”为基调,避免花哨颜色切割空间
4.隐藏式卧室门与电视柜、鞋柜融为一体,避免视觉杂乱
施工过程
硬装完工
小户型装修,从来不是“压缩生活”,而是“放大可能”。这套70㎡的极简风改造,让紧凑空间也能拥有“大宅气场”!极简风从不是“空无一物”,而是让每件物品都有存在的意义。
客厅a living room





卧室bedroom



卫生间toilet

厨房kitchen
70㎡的小家,装下了三口之家的日常,更装下了对生活的所有想象——原来,紧凑户型也能住出“大天地”的松弛感。
微信|13132333833抖音|重庆唤新家工程设计有限公司小红书|重庆唤新家旧房改造地址|重庆市渝北区棕榈泉4期1-2