阅读数: 448 | 回复数: 0

V14 发表于: 2025-12-09 12:59
项目地址 |两江新区某小区
项目面积 | 230㎡
  项目风格 | 法式中古风
  项目类型|别墅大局改
设计师 | 唤新家空间改造 马老师
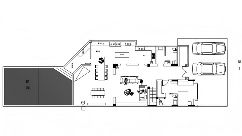
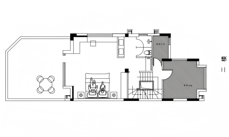
改造前
“不想让妈妈再爬楼了,这是我改造的第一要求。”业主的一句嘱托,成了我们这场别墅改造的核心初心。对有老人的家庭来说,别墅改造最愁两件事:搬家折腾长辈,工期打乱生活。4个月完成别墅大局改,全程无需搬家,我们不仅为老人在1楼打造了舒适卧室,更建起洒满阳光的厨房与餐厅,让孝心与生活暖意一同住进新家里。
住在家里完成的别墅改造,4个月惊艳所有人!
住在家里完成的别墅改造,4个月惊艳所有人!
住在家里完成的别墅改造,4个月惊艳所有人!
住在家里完成的别墅改造,4个月惊艳所有人!
住在家里完成的别墅改造,4个月惊艳所有人!
方案设计住在家里完成的别墅改造,4个月惊艳所有人!
住在家里完成的别墅改造,4个月惊艳所有人!
  • 改造重点
    1. 利用1楼原来的餐厨区和杂物间,建一个老人卧室套房,增加了适老化设施(例如:坐浴器、老年人护理床)
    2. 将入户大门外移,利用原有入户玄关区和鞋柜,搭建一个新的鞋包间
    3. 将原有茶室和之前的生活洗衣区搭建阳光餐厅和阳光厨房,增加了西厨空间
    4. 将2楼原本的小客卧与主卧室打通,形成一个拥有4分离卫生间的大套房住在家里完成的别墅改造,4个月惊艳所有人!

    住在家里完成的别墅改造,4个月惊艳所有人!
    效果图
    复古老钢窗宛如点睛之笔,为整体增添了一抹灵动与生机。踏入室内,餐厅、厨房与阳台巧妙相连又各自独立。餐厅里,长桌静候着家人的欢聚时刻,简约的设计中透露出温馨的氛围。

    住在家里完成的别墅改造,4个月惊艳所有人!
    住在家里完成的别墅改造,4个月惊艳所有人!
    住在家里完成的别墅改造,4个月惊艳所有人!
    住在家里完成的别墅改造,4个月惊艳所有人!
    开放式厨房以黑白花砖铺就地面,复古又时尚,中央的岛台方便烹饪操作,让美食的制作过程也充满乐趣。而客厅则尽显法式复古风情,拱形门洞优雅别致,华丽的吊灯散发着柔和的光芒,墙上的装饰画增添了艺术气息,舒适的沙发和绿植营造出宁静而舒适的居住环境。
    施工过程住在家里完成的别墅改造,4个月惊艳所有人!
    住在家里完成的别墅改造,4个月惊艳所有人!
    住在家里完成的别墅改造,4个月惊艳所有人!


    住在家里完成的别墅改造,4个月惊艳所有人!
    住在家里完成的别墅改造,4个月惊艳所有人!
    住在家里完成的别墅改造,4个月惊艳所有人!
    住在家里完成的别墅改造,4个月惊艳所有人!
    完工
    4个月的等待,改的是别墅的格局,不变的是家的温度。这50平的阳光餐厨,这一楼的安心卧室,从来都不是装修成果,而是业主能给母亲的,最实在的陪伴——让她不用再迁就楼梯,只需要在洒满阳光的家里,自在生活。
    ENTRYWAY入户住在家里完成的别墅改造,4个月惊艳所有人!
    住在家里完成的别墅改造,4个月惊艳所有人!
    住在家里完成的别墅改造,4个月惊艳所有人!
    住在家里完成的别墅改造,4个月惊艳所有人!客厅LIVING ROOM
    住在家里完成的别墅改造,4个月惊艳所有人!
    住在家里完成的别墅改造,4个月惊艳所有人!
    餐厨DINING ROOM&KITCHEN
    住在家里完成的别墅改造,4个月惊艳所有人!
    住在家里完成的别墅改造,4个月惊艳所有人!
    住在家里完成的别墅改造,4个月惊艳所有人!


    • 人赞过
    查看更多
    评分记录

    快速回帖 使用(可批量传图、插入视频等)

    表情
    写好了,发布  Ctrl + Enter 快速发布