阅读数: 751 | 回复数: 3

V17
勋章 勋章
发表于: 2025-12-10 11:54
十二分定制打造 | 渝高星洲 · 时 光
十二分定制打造 | 渝高星洲 · 时 光


“当太阳在远处升起时,一种失落和渴望的感觉已经显现出来。 我总是发现自己在寻找怀旧之情,这是一个永恒的地方,自然仍然占主导地位。 感觉好像这些地方激发了讲故事的灵感,而我恰好在那里记录。”

—Simon Kerola

十二分定制打造 | 渝高星洲 · 时 光

项目地址_Location            
渝高星洲                       
项目风格_Style
中古
项目面积_Space               
150㎡
硬装设计_Project Designer
十二分空间设计
软装陈设_Soft-fitting Designer
桓墅软陈空间设计-杨茜
项目类型_Project Mode 
全案设计

  • 人赞过
查看更多
评分记录
认证商家
勋章 勋章
发表于: 2025-12-10 14:19

这是属于两个年轻人的家。作为他们的婚房,我们以中古风为笔,不为复古,而为书写一份可随时间生长的爱情注解。在150㎡的框架内,未做大刀阔斧的改动,而是通过材质、光影与功能的精妙编排,让空间自然流露温暖与智慧。

————————————

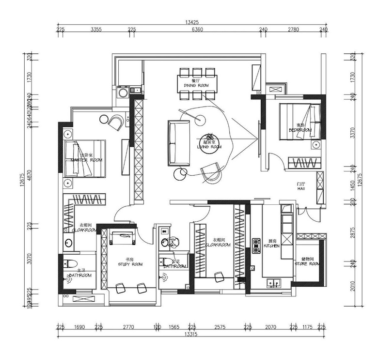
/01
平面布置图
“构建美妙人生的关键”
The key to building a wonderful life
十二分定制打造 | 渝高星洲 · 时 光
认证商家
勋章 勋章
发表于: 2025-12-10 14:25

————————————

/02
有温度的日常之美
“像大地,像清泉,像阳光与月光的平衡”
"Like the earth, like the spring, 
like the balance of sunlight and Moonlight"

十二分定制打造 | 渝高星洲 · 时 光
十二分定制打造 | 渝高星洲 · 时 光

整个家的设计,巧妙以“书”为线索展开。客厅的书架墙是视觉与精神的焦点,书房的藏书是思想的延伸,知识的气息与生活的温度,在木质与皮质的包裹中,浑然一体。

十二分定制打造 | 渝高星洲 · 时 光
十二分定制打造 | 渝高星洲 · 时 光
十二分定制打造 | 渝高星洲 · 时 光

柔和而富有温度的调性,留白与木色的温婉细腻营造空间的纯粹文气。从材质肌理、线条平衡、功能延展,装饰的巧思俯拾皆是。光影与鲜花勾勒出极具氛围感的餐厅和咖啡一角,熹微般的日光透过纱帘,犹如静止的时光,悠然而又从容。

十二分定制打造 | 渝高星洲 · 时 光
十二分定制打造 | 渝高星洲 · 时 光
十二分定制打造 | 渝高星洲 · 时 光
十二分定制打造 | 渝高星洲 · 时 光

温润的木棕色主导氛围,植根于温暖、质感和有机元素,方寸之魅,见悠然之趣。定制套装门利用光影与几何比例形成曲直交错的秩序之美,在纯粹里融入了温柔与放松的慵懒。

十二分定制打造 | 渝高星洲 · 时 光
十二分定制打造 | 渝高星洲 · 时 光
十二分定制打造 | 渝高星洲 · 时 光
十二分定制打造 | 渝高星洲 · 时 光

认证商家
勋章 勋章
发表于: 2025-12-10 14:29


————————————

/03
盛满生活的隽永诗篇
“纯粹松弛的休憩氛围,感受被治愈的过程”
"Relaxed rest atmosphere, feeling the process of being cured"

十二分定制打造 | 渝高星洲 · 时 光
十二分定制打造 | 渝高星洲 · 时 光
十二分定制打造 | 渝高星洲 · 时 光
主卧 · 舒适休憩之所

主卧空间摒弃冗饰,用柔和的肌理与包裹感的灯光,营造纯粹、松弛的休憩氛围。

十二分定制打造 | 渝高星洲 · 时 光
十二分定制打造 | 渝高星洲 · 时 光
独立衣帽间 · 精致收纳宝盒

衣帽间是新生活秩序的序章,充裕且分明的空间,编织每日精致的着装仪式,从容理性地收纳两人的四季日常。

十二分定制打造 | 渝高星洲 · 时 光
独立书房 · 心绪自留地

是专注与思考的静谧容器。延续木质的温润,营造能让人迅速沉静下来的气场。

十二分定制打造 | 渝高星洲 · 时 光
次卧

次卧空间简洁沉稳,色彩素雅柔和,皮革床头与床头柜交相呼应,一盏壁灯,几支鲜花,极度舒爽的整洁感油然而生。

十二分定制打造 | 渝高星洲 · 时 光

快速回帖 使用(可批量传图、插入视频等)

表情
写好了,发布  Ctrl + Enter 快速发布