-
25w穷装巴滨路迷你四房,110平拆50评大挑战!!
楼盘:华远海蓝城建筑面积:112m平房户型:4室两厅两卫设计师:陈晨装修团队:设计师自己的装修团队风格:现代简约“自己想象的”设计费:6000总预算:25w装修本来想找亲戚装的,总觉得亲戚嘛,会不会做得更好一点,但是到最后越想越不对,到时候做好了还好,没做好还不敢说,只有憋起吃哑巴亏,亲戚还不敢说话说重了,2020年下半年在业主群里面认识的这个设计师,原来他也是这个小区的业主,最开始以为他是在群里
50690219 2021-08-03 08:302445 38
-
原木+极简,多图记录这个跃层的蜕变
【楼盘】万科御澜道【面积】220【风格】现代【设计公司】DE设计【设计师】硬装黄先军,软装戚菲菲【费用】80W(预估含基装家具电器设计费) 平面图镇楼
50854036 2021-07-13 09:335691 38
-
钟爱弧形,湖景一览无余的现代简约之家【2021日立装修日记】
我正在参加重庆购物狂【2021日立中央空调杯装修日记大赛】,万元大奖等你拿!链接:https://go.cqmmgo.com/forum-148-thread-174351614675797271-1-1.html收藏 【楼盘小区】金辉·长江铭著【面积】102【装修公司】四象空间设计【硬装费用】预算30W【软装费用(含家电)】预算20W【户型图】改造前: 改造后:最开始接到这套房子的时候其实不是特
50700617 2021-05-24 15:444445 38
-
女汉子18万极限穷装128平【2021日立装修日记】
我正在参加重庆购物狂【2021日立中央空调杯装修日记大赛】,万元大奖等你拿!链接:https://go.cqmmgo.com/forum-148-thread-174351614675797271-1-1.html楼盘名字:蓝光水岸公园面积:128装修公司:佳装惠硬装预算:12万软装预算(含家电):6万 由于预算有限,以前也没有任何装修经验,也没有其他的人帮忙给意见,全程自己一个人决定。真的是什
44731121 2021-04-01 10:153901 38
-
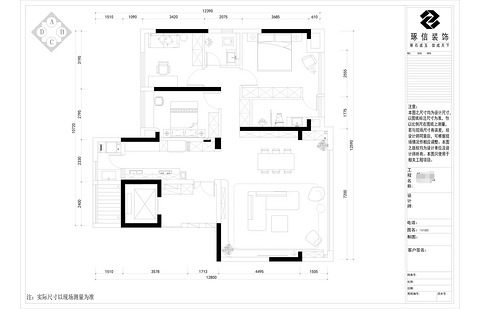
火速买房只为改善,40W装103平已经开始期待
楼盘名称:桂语九里户型面积:103㎡装修风格:现代装修公司:琢信装饰硬装设计:黄品卿项目经理:刘于江预算费用:35(但是在改了之后设计师说40可能都需要努力一下.....那就努努力吧!) 来一个户型图吧
42773278 2021-03-31 17:294827 38
-
装修小白的流水日记
第一次发帖,战战兢兢 【楼盘小区】:金科博翠园【面积】:85㎡【设计公司】:z空间工作室【设计师】:小曾【施工】:待定【风格】:原木 北欧 简约(无所谓风格,实用为主,好看为辅)【费用预算(含家电)】:立个flag,打死不超25万! 【已订主材或家电】(设计师要吐血,拖了这么久,其他杂七杂八的定这么多,施工和进场前需要的地暖还没订好。。。)暖风机:奥普开关:西门子花洒:华艺木门:尹氏油漆:福乐阁电
48369974 2021-09-07 18:4315246 34
-
家有设计师老婆之《装房路漫漫篇》
【楼盘小区】:保利观澜【户型面积】:三室两厅 建面95㎡ 套内80多【设计公司】:琢信装饰【设计师】:辜雨微(就是我老婆)我的老婆是一名设计师,在我认识她的时候,她是一个工装设计师,后来她觉得家装很温暖,不用往外省跑,就经朋友介绍去了琢信,一呆就是两年。有老婆的设计、有琢信的施工,对于拥有先天好环境的我来说,装修房子一想肯定都是一个愉快而又水到渠成的事情,可是,事实绝不会像我想象那样美好和轻松。
49668779 2021-12-13 17:402427 37
-
金科天元道小区装修日记,众多问题等大家一起探讨
我正在参加重庆购物狂【2021日立中央空调杯装修日记大赛】,万元大奖等你拿!链接:https://go.cqmmgo.com/forum-148-thread-174351614675797271-1-1.html 挑战5万做完套内90全屋基装—15万做完全屋!拎包入住,包括封阳台中央空调!原始户型图 寻觅了一天,选了某个工作室的设计师,这是经过多次修改后的图(可能我太幺圆了[ej=1F602])
50660158 2021-03-25 16:083086 37
-
直男审美要不得!60万160平,自己“精装”改豪宅,真香!
【装修风格】:简美,额,自己觉得算一点点轻奢?【设计】:琴琴【家具】:悠好木【软装】:线上线下四处淘来的【地址】:江北宏帆路【面积】:160㎡多我一直以为男人才是家里的顶梁柱,无论大事小事都能潇洒解决。But,图样图森破!年买下了这套万科悦湾南区的房子。当时想着精装修,可以拎包入住,省时又省心。看着老公潇洒交钱的样子,觉得真TM的帅气。可是万万没想到还是逃不出直男审美的定律。当看到精装房的样子的时
50595594 2021-01-15 20:474831 30
-
装修进行时 骨折转欧瑞博智能锁【2021日立装修日记】
开工有段时间了,一直说写日记,结果都......今天终于开始写装修日记,不为别的,就为了给这漫漫长路一个记录。在此还要感谢装修群的兄弟姐妹,在这条路上让我觉得不孤单,经常还跟到捡些趴活。 先说说房子,本来没有买房打算,现在的家孩子上学很方便,从家出门到学校估计10分钟嘛,只是越住家里东西越多,越住越多,衣柜都要爆的感觉,还买了宜家简易柜子放飘窗,反正就是能放东西的地方都堆满了。忘了是17还是18年
25555824 2021-01-13 09:204547 37
-
安身立家,买房装修,普通的人生轨迹
【楼盘名称】:富州平顶山【户型面积】:81㎡ 【装修风格】:现代简约【装修费用】:20w 合适【装修公司】:琢信装饰【设计师】:宋传福【项目经理】:任杰
49668794 2021-12-14 13:292570 33
-
一通减法,小户型变大平层
【楼盘小区】 中建滨江星城【面积】 建面108㎡【装修公司】 朋友的全案工作室(不提名字,避免广告嫌疑)【预算】 28W【装修风格】 现代极简 【户型图】 还是先摆哈买房嘛:年初闪现出换房的念头,有意无意的看了几个楼盘。区域方面只能考虑巴南,神兽读书在这边,当然最尴尬的是包包头的米米不多。但是我家主人对房子的要求还不少,开发商要知名的(后来证明中招掉坑了),交通要接送神兽方便的,户型需要横厅
48691694 2021-11-05 15:565861 36
-
兜兜转转还是确定了壹江郡
有没有邻居
47782429 2021-09-25 12:222864 29
-
慢慢装修路,开始启程
【楼盘小区】中粮祥云B区【面积】建面135;套内105【设计公司】 大可筑作设计师 王茂杰【基装公司】三为团队【整体预算】40w【户型图】
47988113 2021-06-20 19:315826 36
-
租房等新房装修的打工人,生活不停在闯关-悬空式电视墙~
由于之前的住的房子是小两室,我们夫妻和爸爸3人居住,还没有小孩,就感觉很紧凑了 想着有了小孩目前这套房子肯定就不够住,还有就是离我们自己经营小店距离远每天早上都要早起开车,顶着迷蒙的眼睛,太累了就和家人商量换一套大一点的房子,屋头人都举双手赞同得到他们的同意,楼主感觉倍有底气,于是一咬牙,就拍板,卖房重新买 卖了小房子,我们又要面临着租房,又要趁着店头不忙,跑去看房,生活不易小房子还了贷还剩下8
50544890 2021-05-16 16:534868 36
-
150平顶跃历时一年半终于完工 如果再来一次!我要选大平层!
【楼盘小区】 协信敬澜山【房屋面积】套内150平米,露台55平米【房屋户型】三室两厅两卫【设计公司】@张成室内设计【装修公司】私人装修队【硬装设计师】徐杰【软装设计师】袁彤云【装修预算】55万(落地60万) 全屋定制@积成世家中央空调海信中央空调木门Tata瓷砖@嘉尼亚瓷砖洁具 恒洁@生活小管家 最近确实太忙了,以致于开贴几天了,还没有写几个字,接下来我就开始记录一下我的整个装修之路。先来一点瞬间
51007503 2021-08-29 20:0014183 29
-
凭自己的喜好装房子+【2021日立装修日记】
我正在参加重庆购物狂【2021日立中央空调杯装修日记大赛】,万元大奖等你拿!链接:https://go.cqmmgo.com/forum-148-thread-174351614675797271-1-1.html接房快两年了,感觉每个月几大百的物管费交起不划算。正好弟弟家也要装修,就相约一起定装修公司装房子。期间还是看了两三家,荷包里的也不多,就选了性价比不错,而且离家最近的酷创装修公司。目前看
冰森林2018 2021-05-13 17:1411113 29
-
一个态度控、细节控的小别野装修路【2021日立装修日记】
我正在参加重庆购物狂【2021日立中央空调杯装修日记大赛】,万元大奖等你拿!链接:https://go.cqmmgo.com/forum-148-thread-174351614675797271-1-1.html 引子: 2年前,出于购买学区房和改善房的双重考虑,尾随亲爱的闺蜜邻居,以迅雷不及掩耳之势,果断下叉一个
Nancy妈妈的妈妈 2021-05-08 19:502766 22
-
纯小白的装修日记,开个帖记录下
去年底定的房子,巴南千江凌云凌云峰,洋房建面129,套内109,今年10月放贷的。哈哈哈,其实身边黑多人都问我为撒子要去买巴南?(包括我哥哥一直给我说,巴南始终不得是真正意义上的主城区,哈哈)嗨呀,反正阴差阳错就买了。(没得撒子房子是完美契合自己所有需求的,买了就不去比较那些了)关于设计——找设计师是我一直很确定的一件事(以前父母整装的那个房子,设计等于没得),1、设计是专业的,我还是觉得专业的事
50877805 2021-10-25 14:463625 18
-
退休买房装修一条龙,27w99平还加地暖【2021日立装修日记】
我正在参加重庆购物狂【2021日立中央空调杯装修日记大赛】,万元大奖等你拿!链接:https://go.cqmmgo.com/forum-148-thread-174351614675797271-1-1.html收藏 户型面积:99㎡楼盘名称:建工依山郡装修公司:琢信装饰设计师:吴友鑫设计风格:现代灰白+暖整体费用:27万项目经理:王金
好想说881 2021-04-20 16:484067 35
标签简介
2021装修日记大赛,记录装修过程,分享经验心得 最佳日记奖:现金红包 4500元,1名 一 等 奖:现金红包 2500元,1名 二 等 奖:现金红包 1200元,3名 三 等 奖:现金红包 500元,5名 四 等 奖:现金红包 200元,10名 纪 念 奖:现金红包 100元,若干

