-
一边摸索一边走出来的装修之路
2022年开始,买房子的事情提上了日程,孩子大了,家里越来越窄了,考虑到上学上班及已经习惯等各方面因素,我们决定还是在现在住的附近买一套。整个过程还是很快的,因为执拗,虽然看了稍远一点的几个盘,但是都不如意,最后定下来这一套也还算是顺利,过完春节就谈好了价格,奈何房子未满2年,还要等上三四个月。因为真的觉得性价比挺高,所以就守着这一棵树放弃了其他的森林。 很快房子交易了,夏天也到了,本来想到是房子
小七1217 2023-09-04 15:021736 10
-
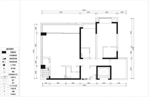
看看我们的水电,选择大于努力,装修肯定稳了
【楼盘】建工二村【面积】97.2【设计公司】琢信装饰【设计师】赵茂宇【项目经理】杨云亮经理
47758098 2023-07-31 17:441746 10
-
多冲浪!让我选择了这家多年好口碑的公司来装修
楼盘名称:中建清能悦和城户型面积:建面100-1,哈哈哈装修风格:奶油风装修费用:30W装修公司:琢信装饰设计师:龚晓霞项目经理:杨云亮 平时就是个6G冲浪在线人er~这次面对装修这种大事件怎么可能放过冲浪了解的机会,所以在一直都了解琢信,好多年前通过平台就晓得琢信,有不错的好感,以及同事亲自体验并且极力推荐的情况下(她对琢信的施工工艺以及服务态度评价很高,也强力推荐我去了解一下),我们首选了琢信
47758091 2023-07-26 17:172711 10
-
设计师给我的效果图
期待项目落成[ej=1F60D]
47785019 2023-07-18 22:241060 10
-
下一步,微水泥
腻子打磨终于完成了。基层的处理和效果还是比较满意,装修中,还是要注意这些基础的处理,打好基础,才能更上一层楼。接下来就是微水泥的施工了,翻车还是完美落地,敬请期待[ej=1F92A]
51641809 2023-07-10 21:35749 10
-
完工倒计时(腻子阶段)
第二遍腻子已完成,还是很感谢施工方紧锣密鼓的安排,特殊造型的处理也并没有因为赶工问题粗制滥造[ej=1F973]等待第三边腻子,期待微水泥落地
51641809 2023-06-29 19:11880 10
-
小麻雀也要设计实用(漂亮),首先就拆它个4个飘窗
【楼盘小区】:首钢铂鹭风华【户型面积】:76【装修费用】:还在持续控制预算【装修公司】:琢信装饰【设计师】:何金霞【项目经理】:陈正【目前已定】:全屋定制 积成世家、瓷砖 顺辉瓷砖、集成灶 美大、漆 阿尔贝娜、门窗 菲尼斯、巨丰石材、奥普 人到了年纪总要经历该经历的事情,美其名曰成长!就比如现在!从买房到装修一条龙式成长服务,以前没接触过,现在也只能说稍微了解,还要装修起码半年吧,慢慢装嘛。因为房
47556929 2023-02-25 18:213772 10
-
拆掉所有飘窗阳台,让家里变大再变大!
【楼盘】阳光城【设计】琢信设计龚小霞【面积】130【预算】40吧!我们都进行到装修的中后阶段了,希望现在开始更新也不算太晚!先来一张结构图,大小是筛选过觉得刚好的面积,还专门留了客房~其实130平算是差不多面积嘛,但是还是想能尽量大些就让屋头看起宽敞些,然后现在其实飘窗的使用率并不大,很莽一个长方体,还浪费空间,想想还是觉得算了,干脆全都打掉!
47471295 2023-01-30 16:151210 10
-
赶工赶进度
这个月也是命运多舛啊……高考、中考、端午小十天又不能施工,和装修公司沟通过后,木工、油工共同入场 木工已完成的地方油工挂腻子,还没完成的地方继续木工施工,目前进度还算是飞起的,就是天气有点不配合,剩余半个月,期待[ej=1F92A] 隐框门安装完成,还没到最终效果那一步,门表面要批挂微水泥,敬请期待[ej=1F62C]
51641809 2023-06-21 10:43798 6
-
装修流水账_6_18
开工两周,高考中考停工一周多。有效施工一周左右。装修进度已到水电。去验了下水管,电线,网线等辅材。电线防伪闹了个乌龙,最开始防伪没扫出来,后面重新验了。小区瞎逛发现另一家也选了同一个装修公司,以后没事也去转转。发点图各位评价下
51673231 2023-06-18 21:05734 6
-
农村老房改造设计,两兄弟的别墅新居分享
农村老房改造设计,两兄弟的别墅新居分享 首先,在老房子的基础上增加了左侧的车库,二楼的露台则是最让人惊叹的一处,能够尽享周围的风景。同时,为了营造出浪漫的氛围,我们在小院里加了一个凉亭,还有一排鲜花和绿色的植物,让人闻之香气四溢;而且为了让整个庭院更具有活力和灵性,我们还开辟了一个鱼池,并设立了露天洗手台! 在改造之前,那里的景色相当沉闷,老房子显得有些过时,现在不一样了,每天一睁眼缓缓坐起看着窗
51757527 2023-06-26 23:161045 9
-
第一个五年计划提上日程,装修就看好久完成!
奔着我们一家人的未来生活,终于把17年就买了的热门小区房子的装修提上了日程,之前没有装也是想好了的,主要是老大读书的原因,当时是不想换学校,又住得好好的,所以没有当时就装修入住。但是娃娃慢慢又长大了,读书的事情慢慢规划完了,装修这个事情就必需要提上日程了,毕竟装修不是一年把年就可以完成的。这算不算是家庭版第一个5年计划?从买房读书到装修 楼盘名称:保利观塘香颂装修风格:奶油法式装修费用:80万(全
47557167 2023-05-10 17:351613 9
-
水电进场阶段
房子装修到水电进场了,一直比较忙,今天到现场,碰巧皓伦装饰的王总和设计师一起在现场验收,感觉皓伦装饰的施工做得很不错,水电管线也是红外线排管,根据我们的生活习惯沟通后确定的每个位置。以前看见其他朋友发的装饰公司的各种不规范,和项目增加这些,现在完全没有担心了,感觉找对了装饰公司,期待后期的效果!
51696757 2023-04-23 10:32942 9
-
自从开始进场了,变化是天天都能看到!
楼盘:天骄公园面积:套内111.5装修:琢信设计:黄品卿项目经理:王金目前进度:我们才把线槽打完,今天早上水电的材料进场,才摆的归归于于要开始水电施工了灯具洗衣池的位置,插座(比如机器人洗衣机烘干机管线机等等这些的位置)这些也是上周末才完全定下来的,所以今天开始水电。打线槽前和打完了的客厅看起都已经有了些变化,还是很期待,现在是干劲满满哈哈哈
47557098 2023-03-29 18:10994 9
-
装修流水账_7_23
施工: 木工吊顶,好像对他没啥要求,两三天基本完工。接口基本转角7形整板。泥工贴砖 厨卫墙砖基本贴完,卧室地砖基本贴完。砖还可以,几何平整度OK,调平器用的少。虽然砖同色,但墙砖不知道是采光好还是啥原因,挺好看的,地砖就稍微没那么有效果了。厨房砖算少了,要补一些砖,顺便把杂砖送来,阳台决定还是贴砖,又多加了点砖,就一起送了。卫生间墙砖卧室同色地砖然后被开发商狠狠的上了一
51673231 2023-07-23 22:20922 5
-
华侨城云溪都会施工日记
电工完工
51135016 2023-06-28 14:17732 5
-
人生第一次装修
人生第一次装修终于开始干了,经过一个月的设计,找了基装团队,跑了很多店,走到这一步我觉得我的设计师费是白花了的,看看到后面的步骤会不会让我改变想法吧[ej=1F602]
51624284 2023-04-18 14:55642 2
-
想要145平好看的屋,先从造型做起来
面积:145㎡风格:现代工作室:琢信装饰设计师:彭思雨装修预算:40W 装修之前有想说自己装,但是觉得房子还是要好看点,住起才有品质嘛,就还是找了装修公司来设计施工,一开始就给设计师说还想要有点品质感嘛,好看点比较重要,所以从玄关开始就有些我比较喜欢的造型,就是有点费经济哈哈哈哈
47759027 2023-12-06 12:36692 8
-
本着物尽其用的原则,家里每一个空间都不能浪费
【楼盘小区】金科南山【面 积】181【风 格】现代风格【装修公司】琢信装饰【设计 师】龚小霞【项目经理】甘经理 家里是小复式,开始就是看中这个面积可以做出很多花样,才决定买的这套,所以我们买了之后就把中间挑高层现浇了,做了两个房间出来,主要是家里还是需要这样的空间,而且主要是觉得留到起以后挑空的地方也不好做清洁,还有点浪费,家里面的人来看到起不晓得啷个念si个人,还是做个现浇层算了,至少把书房和次
47759234 2023-11-17 17:151660 8
-
装修流水账_7_30
天气热起来来,出门那可挣扎了施工:贴砖,基本快贴完了,可能还需要一两天工期。没要门槛石,直接瓷砖通铺了。为啥没对缝,对缝一间600有点小贵了还有虽然没对缝,但单间的地面排版出来可能更好看,碎砖更少 地漏看了应该没断层贴砖的地漏会稍微整体感强一点果然还是自然光打着好看点主材商家:hhh,装修过后,心平气和的,就算被放了鸽子,现在气都懒得气了,直接换一家就行了,不值得我去生气。
51673231 2023-07-31 12:48798 8
标签简介
活动时间:2023.1.1-2023.12.31 活动奖励: 最佳日记奖:现金红包4000元,1名 一等奖:现金红包2000元,1名 二等奖:现金红包1000元,3名 三等奖:现金红包500元,5名 纪念奖:现金红包100元,若干

