海尔洗烘/小天鹅洗烘,怎么选?讲讲我的分析
1个月前 收录
就喜欢化繁为简,所以,面对小天鹅那么多洗烘套装,我就挑选了批发渠道,最畅销的几个型号,简单的分成了高中低三个段:一,年轻人比较喜欢的86+35,或者87+87或者88+36,别看小天鹅那么多型号,4500以内的入门产品,就这三款销量最好,批发价也差不多,87+87虽然没有蒸气免熨烫,但是有正反转,对于烘四件套很友好,而88+36则和87套装刚好相反(有蒸汽熨烫没有正反转
查看详情>>
阅读:5041回复:39
你们窗帘都做了一层纱的吗?主要是为了好看?
1个月前 收录
刚刚看管管发的窗帘团,两房不带纱只要999,但是带纱的要1799,贵了差不多一半这么多我想问你们的窗帘都做了一层纱的吗?除了好看还有啥实际作用?如果只是好看我都想不做纱了
查看详情>>
阅读:835回复:11
谁家洗衣机一次只洗几件衣服?
1个月前 收录
今天跟家里老人居然因为洗衣服的事情吵了一架。因为我一次就洗了这么几件衣服,老人觉得浪费水电,应该多点衣服了再一起洗。但是这个夏天,莫非我还要囤货,囤臭了再一锅洗?她说衣服少就手洗,那夏天衣服天天都手洗,我岂不是这几个月洗衣机都当摆设了吗顺便问一下,我天天开15分
查看详情>>
阅读:8258回复:78
装修即将毕业,说一说中间遇到的各种坑
1个月前 收录
快完工的状态 。之前发的帖子被屏蔽了,也不知道为啥,这个帖子就说下快一年的装修遇到的各种问题。1.想好自己喜欢的风格,选设计师要选他擅长的风格领域,而且他的风格要对自己的胃口,不要让设计师轻易尝试他没设计过的风格,不然就是一场灾难,特别是自己有想法,设计师也很有想
查看详情>>
阅读:655回复:13
如果再装修,我一定不会装电视柜了
1个月前 收录
现在经常看大家的帖子,都说茶几没得必要,占地方,还容易乱。要我说,茶几虽然可能是占地方,但是好歹还有点用。但是电视柜才是真的又占地方又没得用。搬家半年了,这些抽屉里头,就有一个放了点日常的药品,剩下的啥都没放,而且因为就几个抽屉,其实也放不了什么不得了的东西,
查看详情>>
阅读:6346回复:47
求助网友:楼上漏水拒不认账咋个办
1个月前 收录
前几天收回出租了2年多的房子,准备修整一下墙面在继续出租发现有间卧室顶棚有明显水泡痕迹,遂联系物管上楼找邻居家查看,发现楼上墙面地脚泡水严重,
查看详情>>
阅读:970回复:13
家人们,千万不要在网上买便宜的麦饭石锅
1个月前 收录
阅读:1145回复:15
不听劝,柜门真的会变形
1个月前 收录
刚在网上看的,说有姐妹发的笔记说,柜门不要一直开着,容易变形,不听劝,自认为,变形的都是质量不好,我的不会有问题,结果打脸了,火辣辣的疼我家
查看详情>>
阅读:1.1万回复:8
一人分享一个你知道的家居生活小常识or小技能
1个月前 收录
我先来,虽然你们可能都知道买回来的衣服一定要洗了再穿,因为新衣服不光有甲醛,而且工人可能用这些布料擦过汗,擦过鼻涕,擦过JIO
查看详情>>
阅读:5270回复:61
你们家木门多少钱一扇,上面封边了吗?
1个月前 收录
我们家在建材市场定的烤漆门,1200 ,安好了发现上面没封边,像个半成品问到老板说没有规定要封边,他们一直是这样的(只是因为一般大家不得爬上去看吧
查看详情>>
阅读:1402回复:8
大盘点!重庆到底有哪些建材市场?
1个月前 收录
老生常谈!最近又看到有装修网友发帖问:求助大的建材市场在哪里看来盘点一波重庆的建材市场非常+超级+无敌有必要哇管管这就整理汇总一波有需要的宝子们自取以后不知道去哪儿逛建材看这帖就知道啦
查看详情>>
阅读:1.5万回复:20
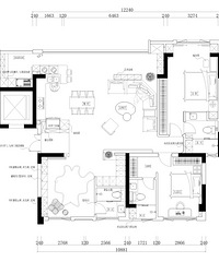
118㎡小家毕业总结,这种网红沙发真的中看不中用
1个月前 收录
[[2023-08-02-10-14]]小区:玖著天宸面积:118㎡风格:奶油侘寂装修公司:橙子设计@@重庆橙子装饰 设计师:孙思、李文灿装修费用:40w
查看详情>>
阅读:2.1万回复:150
一人说一个家里最没必要买的东西,啥都行
1个月前 收录
房子硬装要搞完了,准备开始往家里添置东西了,麻烦大家来说说你们家买了,但是其实没啥用的东西,我来省钱啦,谢谢各位
查看详情>>
阅读:9226回复:52
你们厨房是怎么保持干净的,我天天抹还是脏
1个月前 收录
想问问你们怎么做厨房清洁的啊,我每天做完饭就擦,但是还是感觉永远都油油的,做不到网上有的那种一看就非常干净的状态。而且我不管怎么收纳,台面上
查看详情>>
阅读:685回复:8
小厨房有必要用洗碗机吗?自己还是要收拾灶台
1个月前 收录
一字型3.4米的小厨房,没有空间可以浪费,我想的是用了洗碗机,自己也要收拾清洁灶台,水槽。洗碗机不能完全解决问题,而且又要占一个宝贵的地柜的空间,所以万能的网友们,你们厨房用了洗碗机吗?哪款呢?感觉如何?如果再给你一次选择的机会,你还会选择洗碗机吗?
查看详情>>
阅读:379回复:12
这种空调机位能用吗?物管不让拆
1个月前 收录
我们小区的空调机位全部是这种封死的监狱机位,问了很多人都说这个影响散热,用起来会非常耗电。但是物管规定不让拆,想问一下这种是真的很耗电吗?如
查看详情>>
阅读:1091回复:8


